XM200K
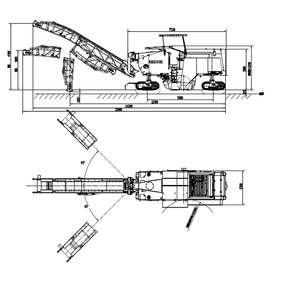
主要尺寸:

XM200K路面銑刨機是瀝青混凝土路面養(yǎng)護施工機械,主要用于公路、城鎮(zhèn)道路、機場、貨場、停車場等瀝青混凝土面層的開挖翻新?梢愿咝У颓宄访姘b包、油浪、網紋、車轍等;亦可開挖路面坑槽及溝槽;還可用于水泥路面的拉毛及面層錯臺的銑平。該設備工作效率高,施工工藝劍達,銑刨深度易于控制,操作方便靈活,機動性能好,銑刨的舊料能直接回收利用,可廣泛地用于瀝青路面的維修翻新養(yǎng)護施工之中。

上一個:XM353
下一個:暫無
歡迎訪問衢州市紅星工程機械有限公司官方網站!